Logo

Connection and Member Design

Thumb

Connection and Member Design

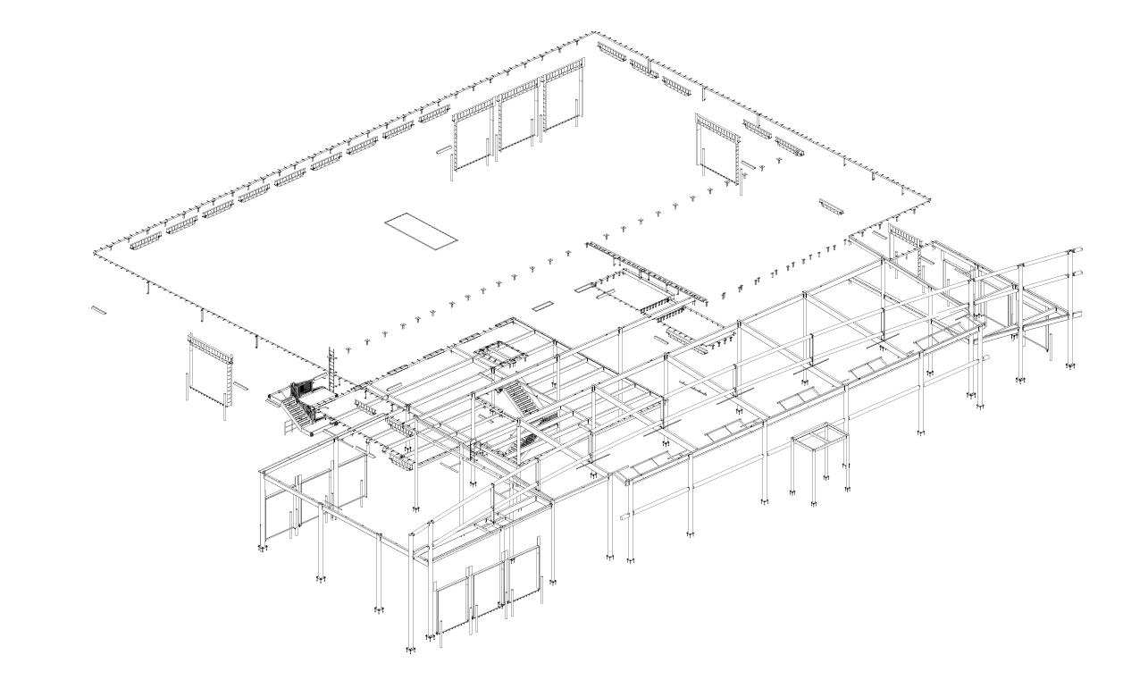
At Sublime Structures, our approach offers accurate connection design services in collaboration with our engineering partners. This service brings both design and detailing under one roof, fostering improved efficiency, coordination and enhancing project schedules.

  • Integrated Design and Detailing
  • PE Stamping (If Contract Required)

Our collaborative approach with our engineering partners ensures a comprehensive and seamless process, addressing both design and detailing aspects under one umbrella. The combined expertise leads to smoother project execution, fewer coordination challenges, and a more efficient timeline.

We welcome the opportunity to discuss how our integrated services can benefit your project. Contact us to explore the advantages of our connection design services and the assurance of PE stamping where needed.

Have any question?

Feel Free to Get in Touch